Markiere mit einem Bleistift die Stellen, an denen die Bambusrohre gekürzt werden müssen. Säge sie dann mit einem Fuchsschwanz auf die benötigte Länge zu.
Das brauchst Du
Vorbereitung
Die Bambusrohre haben in mehr oder weniger regelmäßigen Abständen Verdickungen. Diese Stellen können später nicht durch die Bohrlöcher geschoben werden. Lass deshalb beim Zuschneiden der Rohre genügend Abstand zwischen Rohr-Ende und erster Verdickung.
- Rohr-ø 8 cm mindestens 16 cm Abstand
- Rohr-ø 5 cm mindestens 12 cm Abstand
Plane den Verschnitt, der sich daraus ergibt, beim Materialeinkauf ein.
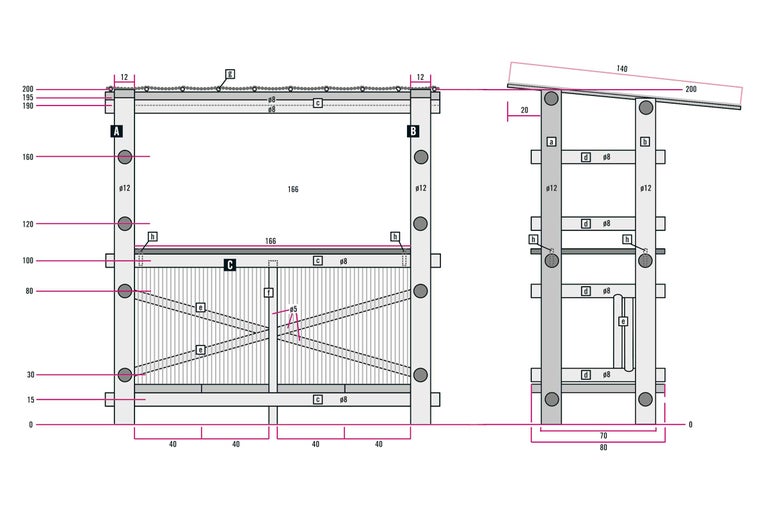
- a) 200 cm Länge, Ø 12 cm (2x)
- b) 195 cm Länge, Ø 12 cm (2x)
- c) 200 cm Länge, Ø 8 cm (6x)
- d) 80 cm Länge, Ø 8 cm (8x)
- e) 200 cm Länge, Ø 5 cm (2x)
- f) 100 cm Länge, Ø 5 cm (2x)
- g) 140 cm Länge, Ø 2 cm (10x)
- h) 10 cm Länge, Ø 2 cm (4x)
80 Länge x 40 Breite x 5 Höhe cm (4x)
166 Länge x 40 Breite x 3 Höhe cm (2x)


Exaktes Arbeiten ist das A und O
Verwende für das Bohren der Bambusrohre einen Bohrständer und spanne Bohrmaschine und Bambusrohr ein, damit Du exakt arbeiten kannst. Bei den Verbindungen werden immer zwei unterschiedlich dicke Rohre zusammengesteckt.
Wenn nicht exakt gegenüber gebohrt wird, ist die Verbindung später nicht rechtwinklig oder das dünnere Rohr lässt sich nicht durch beide Bohrungen durchschieben.
Bambus zusägen
Bambusrohre vorbohren
Markiere zuerst auf der Schnittkante am Ende des dickeren Rohres die Bohrachse. Markiere dann die Positionen, an denen nachher die dünneren Rohre eingesteckt werden, am dickeren Rohr. Bohre anschließend das erste Zentrierloch mit einem 5-mm-Metallbohrer. Drehe das Rohr im Schraubstock um exakt 180° – Markierung beachten – und bohre das Loch auf der gegenüberliegenden Seite.
Löcher für Steckverbindungen herstellen
An den vorgebohrten Stellen wird mit einer Lochsäge ein kreisrundes Loch zum Einstecken des dünneren Bambusrohrs ausgesägt. Verwende dazu eine Lochsäge im gleichen Durchmesser wie das dünnere Rohr, das durchgeschoben werden soll. Bohre das erste Loch und drehe dann das Rohr im Schraubstock um 180 Grad, um den Vorgang von der anderen Seite zu wiederholen. So erhältst Du ein durchgehendes Bohrloch, durch welches das dünnere Bambusrohr gesteckt werden kann.
Arbeitsschritte
Seitenteile herstellen
Bohre in die Rohre (a) und (b) zunächst die Löcher für die Querstreben (d). Bohre anschließend die Löcher für die beiden Längsverbindungen (C), durch die später die beiden Seitenteile (A) und (B) verbunden werden. Um die Konstruktion zu stabilisieren, werden später zwei Diagonalstreben (e) in die beiden unteren Querstreben eingesetzt – bohre dafür von nur einer Seite (!) jeweils ein Loch in die vier unteren Querstreben (d). Wenn alle benötigten Löcher gebohrt sind, können die beiden Seitenteile (A) und (B) montiert werden.
Bodenelement herstellen
Die beiden Elemente (C) für vorne und hinten sind identisch. Fertige sie nach dem gleichen Prinzip jeweils aus 2 Längsstreben (c) und einem senkrechten Stützrohr (f) an. Beachte dabei, dass die obere Längsstrebe (c) nur auf einer Seite gebohrt wird, da das Stützrohr (f) hier einseitig eingeführt und nicht durchgesteckt wird.
Seitenteile und Böden zusammenstecken
Ab jetzt solltet Ihr zu zweit arbeiten. Die Bar lässt sich einfacher zusammenbauen, wenn sie mit der Rückseite auf dem Boden liegt – Decke o. Ä. unterlegen. Verbindet das Seitenteil (A) mit den beiden Längsverbindungen (C) und prüft die Rechtwinkligkeit.
Alles miteinander verbinden
Steckt nun die beiden Diagonalstreben (e) und die beiden oberen Längsstreben (c) in die dafür vorgesehenen Bohrungen des Seitenteils (A). Nun steckt ihr das Seitenteil (B) auf die sechs Längsstreben (c) und die beiden Diagonalstreben (e).
Eckverbindungen fixieren
Bambusrohre sind ein Naturmaterial, deshalb können die Rohrdurchmesser variieren. Dadurch haben die Verbindungen etwas „Spiel“. Fixiert die Verbindungen zusätzlich mit einem Seil, damit sie sich nicht mehr verschieben. Richtet die Bar anschließend auf und stellt sie auf ihre Füße. Ab jetzt kannst Du wieder alleine weiterarbeiten.
Tresenplatte zuschneiden
Für die Herstellung der Tresenplatte kannst Du Massivholzbretter z.B. aus Douglasie verarbeiten. Um auf eine Breite von 80 cm zu kommen, werden zwei Bretter mit je 40 cm Breite benötigt, die dann zu einer zusammenhängenden Tresenplatte verbunden werden. Säge beide Bretter auf die Maße 166 x 40 cm zu. Um saubere, exakte Schnitte zu ermöglichen, verwendest Du am besten eine Tauchsäge oder Handkreissäge mit Führungsschiene.
Tresenplatte verbinden
Bohre mit einer Dübellehre Dübellöcher in die Stoßseiten. Trage Leim auf die Stoßflächen und die Dübel auf. Press die beiden Bretter mit mehreren Schraubzwingen fest zusammen. Löse die Schraubzwingen erst, wenn die vom Leimhersteller vorgegebene Zeit zum Aushärten erreicht ist. So erhältst Du eine stabile, zusammenhängende Tresenplatte.
Tresenplatte vorbohren
Lege die Tresenplatte auf die mittleren Längsstreben und fixiere sie daran mit Schraubzwingen. So kann die Platte beim folgenden Arbeitsschritt nicht wegrutschen. Bohre zunächst mit einem 20-mm-Holzbohrer in jeder Ecke ein Loch durch die Massivholzplatte: mittig über dem Rohr, auf dem sie liegt. Bohre in das Bambusrohr mit einem 20-mm-Metallbohrer weiter – aber nur durch die Oberseite, nicht durch die Unterseite.
Platte fixieren
Säge von einem der dünnen Bambusstäbe (ø 2 cm) vier 10 cm lange Stücke (Bolzen) ab. Stecke diese Bolzen (h) durch die Löcher in der Tresenplatte in die Rohre darunter. So ist die Platte fixiert und liegt sicher auf den Rohren auf.
Betonplatten einfügen
Die Bar braucht einen tiefen Schwerpunkt für einen sicheren Stand. Lege dazu Terrassenplatten aus Beton (80 x 40 x 5 cm) auf die unteren beiden Längsrohre. So entsteht ein praktischer Stauraum, in dem z. B. Getränkekisten abgestellt werden können.
Stäbe als Dach verteilen
Verteile die zehn Bambusstäbe mit 140 cm Länge und ø 2 cm gleichmäßig über das Dach der Bar. Fixiere die Stäbe an allen Auflagepunkten mit einer Schnur im sogenannten Kreisbund. Die Stäbe verbinden die beiden oberen Längsstreben und tragen die Dachmatte.
Schilfrohrmatte anbringen
Decke das Dach mit 200 cm der Schilfrohrmatte. (Den Rest der Matte brauchst Du im nächsten Arbeitsschritt.) Schneide mit einer Gartenschere jeweils ein Loch für die senkrechten Bambusrohre in die Matte. Fixiere die Schilfrohrmatte anschließend mit einer Schnur an den Bambusstäben, auf denen sie aufliegt.
Stauraum mit Schilfrohr verkleiden
Nun wird der Stauraum unter der Tresenplatte mit Schilfrohrmatten verkleidet. Damit sich die Matten gut in die Konstruktion einfügen, werden manche Stellen vor dem Festbinden mit der Gartenschere ausgeschnitten. Schneide für die beiden Seiten je eine Matte von 70 x 70 cm zu und binde sie mit einer Schnur von innen an die Bambusrohre, auf denen sie aufliegen. Schneide eine weitere Matte für die Front zu, etwa 175 x 70 cm. Sie wird zwischen den Diagonalstreben und dem mittleren senkrechten Bambusrohr platziert und ebenfalls mit einer Schnur an den Rohren befestigt, auf denen sie aufliegt. Fertig ist Deine neue Bar mit Südseeflair.
Bring Farbe ins Spiel
Die Tresenplatte kann farbig oder mit Klarlack lackiert werden – für eine höhere Strapazierfähigkeit oder nur aus optischen Gründen.























