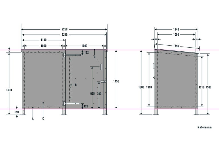
Wenn Du einen Fahrradunterstand selber bauen möchtest, musst Du als erstes das Ständerwerk aufbauen. Richte dafür die sechs Aufschraubhülsen sehr sorgfältig aus, damit die Zuschnitte später passen.
Stecke dazu ein Kantholz 70 x 70 mm in jede Hülse und positioniere sie mit Abstand (a) [in unserem Beispiel 1000 mm] zwischen den Kanthölzern. Lege ein Stück Antirutschmatte unter jede Hülse, damit sie nach dem Ausrichten nicht mehr verrutscht. Richte die Hülsen exakt im rechten Winkel aus – zur Linie, auf der sie stehen, und zueinander. Du hast keinen großen Bauwinkel zur Hand? Dann prüfe die Rechtwinkligkeit mit den beiden Diagonalen (X). Sind sie gleich lang, dann ist der Aufbau rechtwinklig. Markiere anschließend die Bohrlöcher für die Dübel.































